地點:重慶,中國
委托人:萬科
風景園林:Martha Schwartz Partners
設計團隊:Martha Schwartz、Nigel Koch、Jasmine Ong、Christabel Lee、Aigars Lauzis、Ignacio Lopez-Buson、Ceylan Belek-Ombregt、Markus Jatsch、Gilles de Wever
面積:16公頃
年份:2013年



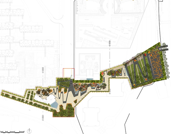
鳳鳴山公園位于重慶市沙坪壩經濟開發區,占地面積16000平方米。公園南部是舊住宅小區,北面是華譽城項目,西邊是上橋路,東側是楓溪路(即公園主入口及最高點所在地)。 鳳鳴山公園于2013年春天向公眾開放,游客可以依次觀賞到標志性的山形雕塑、廣場、綠化景觀、水景等,最后到達萬科金色城市發展銷售中心。
公園的主要設計點是建造一個具有獨特標志的示范園區和城市公共空間,促進未來經濟的發展。公園應能將目光從上部主干道和楓溪路入口吸引到萬科發展銷售中心;同時還能根據周邊未來發展的需要進行改造和整合。
高差明顯的特殊地形為人行步道的設計帶來挑戰,但同時為從上部停車場到最底層售樓中心的汽車通道提供了便利,形成一道獨特的“山形”動態景觀。
綿延的山峰、四川盆地的山谷、水稻梯田、蜿蜒的長江和重慶灰白薄霧彌漫的神秘天際在公園周圍形成了巨幅的自然背景,建立了強烈的視覺聯系。
設計師從這些元素中汲取靈感設計了亭閣、“Z”形小道、公園地形,及與天空色對比的鮮艷色調。
從楓溪路到達公園,入口處排列的舞動的紅色和橘色雕塑將游客引向廣場停車場。第一個亭子設在入口處,隨著亭閣沿山坡一路向下,可以看見延綿不絕的山峰。每個亭閣都沿著“Z”形小道精心布置,將人行步道引向下方的“山巒”,最終到達萬科銷售中心區域。白天,亭閣灑下陰涼;夜間,被燈光點亮的亭閣則變身為絢爛的“燈籠”。
“Z”形小道解決了高差明顯的地形為游人帶來的不便。它已成為一種地脈語言,人們好似行走在陡峭山巒上的蜿蜒小道。每一個拐角處都設有供游人
休憩、賞景的平臺。“Z”形小道兩旁是用大塊黑色深紋理混凝土制成的護墻,游人仰望山丘,會看到一道長長的巖石輪廓。護墻圍成的溝谷或溝壑形成了流經公園的溪流。
從廣場一直流向銷售中心的水元素是鳳鳴山公園的重要部分。設計師采用了水渠、水池、噴泉等不同的水景效果,不僅起到降溫的作用,潺潺的流水聲和水景營造出的氛圍更是為游人展示了一道迷人的風景。
從入口廣場的雕塑,“Z”形小道,再到蜿蜒的水景、拐角平臺最終到達銷售中心,整個公園就是一個連續的快樂旅程。
鳳鳴山公園已成為洋溢著快樂、活力和備受喜愛的重慶城市景觀。












總平面圖

剖面圖